르꼬르뷔지에는 20세기 현대 건축의 거장으로 그의 건축 철학과 디자인 원칙은 오늘날에도 여전히 많은 건축가들에게 영향을 미치고 있다.
르꼬르뷔지에의 근대 건축 5원칙
- 필로티: 건물의 하부를 기둥으로 지지하여 지면에서 떠 있는 형태. 공간을 개방적으로 활용할 수 있는 방법이다.
- 자유로운 평면: 기둥 구조가 사용되기 시작하면서 내부 공간 계획이 자유롭고 유연해졌다.
- 자유로운 입면: 기둥 구조가 사용되기 시작하면서 구조적 요소와 무관하게 외벽이 독립적으로 설계될 수 있어 창문과 벽체의 배치가 자유로워졌다.
- 수평 창: 긴 수평 창을 통해 더 많은 자연광을 유입시키고, 외부와의 시각적 연결을 강화한다.
- 옥상 정원: 건물의 옥상에 녹지를 조성하여 도시 환경 속에서도 자연을 느낄 수 있는 공간을 제공한다.
이 원칙들은 르꼬르뷔지에의 건축물에서 뚜렷하게 보인다.
근대 건축 5원칙이 제일 잘 나타난 "빌라 사보아" 건물을 통해 자세히 알아보고자 한다.
빌라사보아

빌라 사보아는 1931년 프랑스 푸아시에 지어진 주택이다.
르꼬르뷔지에의 원칙을 모두 적용되고 잘 드러나고 있는 상징적인 건물로 기능성과 미학의 융합을 통해 혁신적이고 모던한 디자인을 보여주고 있다.
당시 건축계부터 오늘날까지 건축의 중요한 모델로 여겨지며 건축의 가능성을 탐구하는 실험적 공간이다.
근대 건축 5원칙으로 뜯어보는 빌라 사보아
1. 필로티
건물 하부를 기둥으로 떠받쳐 지면에서 건물을 띄우는 구조로 지상을 개방하여 주차장 등으로 사용할 수 있게 하였다.
초록색 벽이 있는 층이 1층이다. 기둥으로 띄워져 비워져 있는 공간이 보인다.

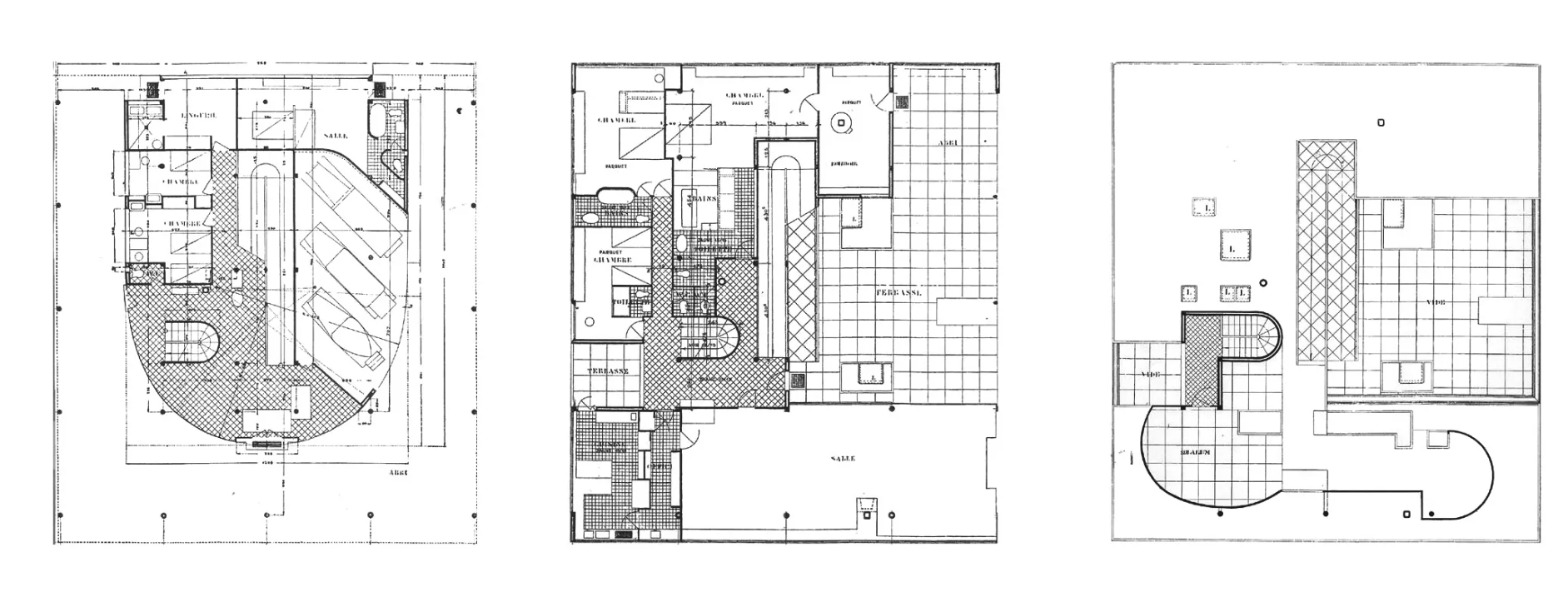
2. 자유로운 평면
기둥이 구조를 지탱하면서 벽을 자유롭게 배치할 수 있게 되었다.
내부 공간을 유연하게 설계할 수 있었으며, 이를 통해 주거 공간을 더욱 다양하게 활용할 수 있었다.
자세한 내용은 평면도를 참고해보자. 곡선과 수직 동선의 위치가 자유롭고, 다양한 크기의 공간이 자유롭게 구성되어 있다.

3. 자유로운 입면
외벽이 구조적으로 독립되어 있어, 창문과 벽체를 자유롭게 배치할 수 있었다.
곡선형의 외부 계단과 사선형태의 경사로는 건물 외관에 포인트를 더해주고 창문은 끊어짐 없이 건물 전체로 이어진다.
4. 수평 창
길고 수평으로 뻗은 창문을 통해 자연광을 최대한 유입시킨다.
이 창은 외부 풍경을 실내로 끌어들이며, 빛과 공간의 개방감을 더해준다.
과거 전통 건물들과 달리, 구조적 요소로부터 자유로워진 모습을 볼 수 있다.
(자세한 내용이 궁금하다면 이전 포스팅 참고)
5. 옥상 정원
건물 옥상에 녹지를 조성하여 자연과의 조화를 보여준다.
도시 생활 속에서도 자연을 가까이 느낄 수 있게 해주는 중요한 요소이며 오늘날 빌딩 숲에 사는 우리에게도 숨통이 되어주는 필수적인 건축 요소 중 하나이다.
간단하게 르꼬르뷔지에의 이론과 그의 대표 건축물에 대해 알아보았다
5원칙으로만 요약하기에는 빌라 사보아에서 봐야 할 포인트들이 너무 많은데 그건 이 영상을 통해 꼭 한번쯤 봤으면 좋겠다.
아무래도 글보다는 시각 자료가 더 잘 눈에 들어올 테니
https://www.youtube.com/watch?v=f1womjgDI_I&t=1s
다음 글도 기대해 주길!
르꼬르뷔지에, 건축에 관심을 갖기 시작했다면 필수로 알아야 할 건축의 거장
건축에 관심이 조금이라도 있다면, 반드시 알아야 할 인물이 있다.바로 "르꼬르뷔지에"야심 찬 블로그의 시작으로 건축의 거장에 대해 알아보자.1. 르꼬르뷔지에, 누구?20세기 현대 건축에 가장
y-story.tistory.com
건축가 르꼬르뷔제의 도미노 이론에 대해 알아보자 1
건축 분야에서 가장 혁신적인 아이디어 중 하나로 평가받는 건축가 르꼬르뷔제의 도미노 이론에 대해 적어보고자 한다. 1. 르꼬르뷔제와 혁신적인 "도미노이론"건축 역사상 가장 중요한 인물
y-story.tistory.com
'건축' 카테고리의 다른 글
| 렘쿨하스, 해체주의 건축가가 설계한 갤러리아 광교 (4) | 2024.11.15 |
|---|---|
| 건축 거장들을 짧고 빠르게 만나보자 (1) (6) | 2024.11.13 |
| 리움미술관, 세계적인 건축 거장들이 만들어낸 한국의 건축 명소 (0) | 2024.11.11 |
| 건축가 르꼬르뷔제의 도미노 이론에 대해 알아보자 1 (0) | 2024.11.08 |
| 르꼬르뷔지에, 건축에 관심을 갖기 시작했다면 필수로 알아야 할 건축의 거장 (0) | 2024.11.07 |